Construa sua casa sustentável com tijolos ecológicos

Projeto completo, com todas as plantas e detalhes técnicos! Desenvolvido por profissionais e validado com a experiência real de quem já construiu!

A Casa Pi nasceu em 2023, fruto de muita pesquisa sobre diferentes métodos construtivos, buscando trazer acessibilidade e viabilidade às complexidades que envolvem a construção de uma casa. Pensada inicialmente para atender a um casal, a casa foi construída, vivenciada e bastante admirada na internet, provando-se adaptável para diferentes famílias e estilos de vida.

Este projeto une materiais inteligentes, simplicidade de execução e conforto a longo prazo, resultando em uma casa bela, funcional e sustentável.

Detalhes técnicos:

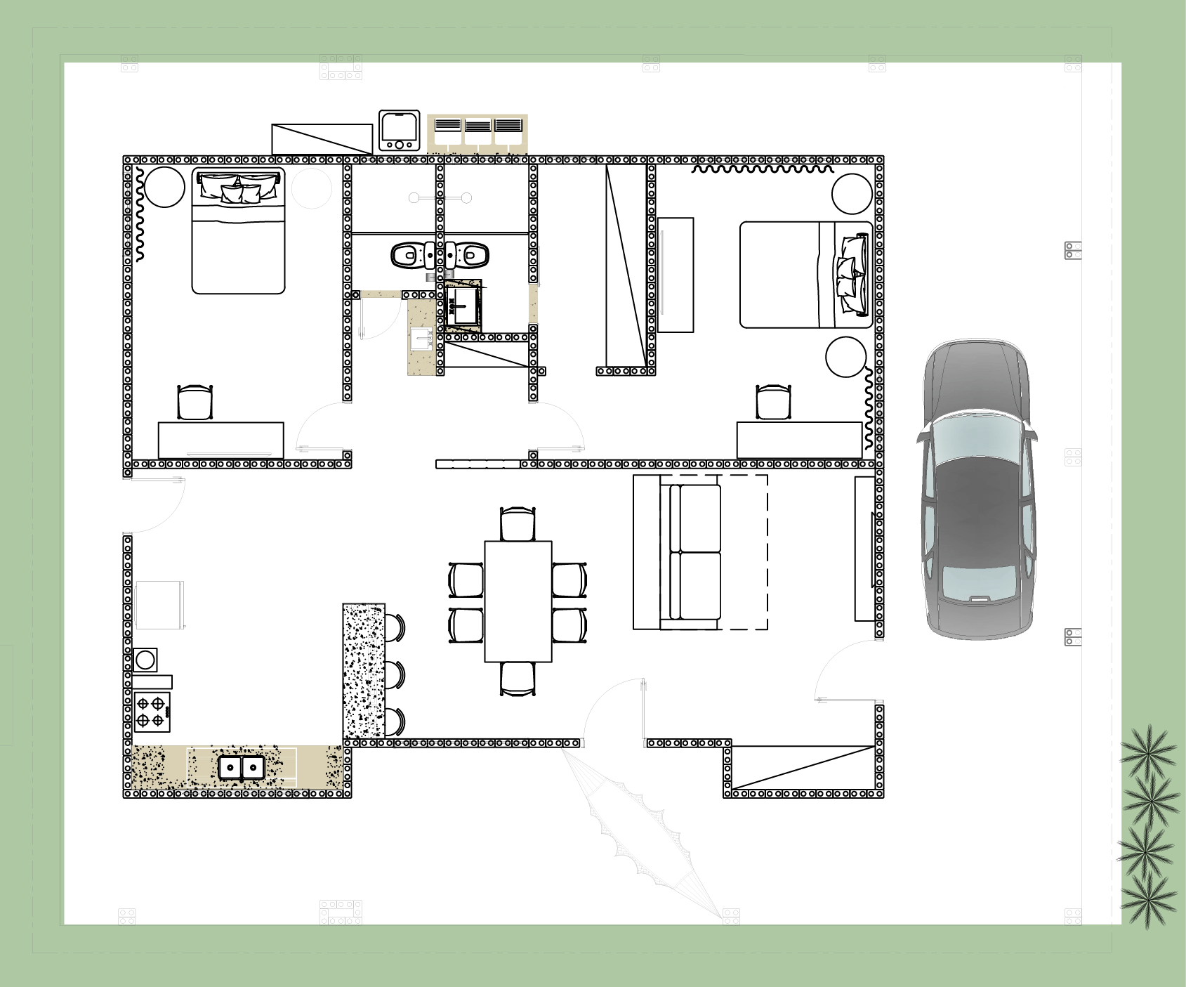
  • Área da casa: 108m²
  • Área total com varanda e garagem: 220m²
  • Tempo de execução: 5 meses
  • Características gerais: Obra térrea, inteiramente construída com tijolos ecológicos, ventilação cruzada, piso de concreto polido, banheiros com laje, telhado com telhas sanduíche e compatibilidade para instalação de painéis solares.
  • Ambientes: Varanda, Sala de Jantar/Estar, Cozinha integrada, Lavabo, Banheiro Social, Quarto de Hóspedes, Suíte Principal com banheiro e closet, Lavanderia e Garagem.

Quem Somos

MotionMe - Casal de criadores

MotionMe

Michel Icart e Marina Rosa, são designers e produtores de conteúdo, somando mais de 4 milhões de seguidores. Após fabricarem 22 mil tijolos ecológicos no quintal, muitos se interessaram em saber mais sobre o projeto. Autores do Manual EcoLógico, passo-a-passo que ajudou centenas de pessoas a entenderem sobre esse método construtivo. Com a obra da Casa Pi finalizada e aprovada, decidiram dar o próximo passo: tornar esse projeto acessível para quem deseja construir!

Moldar Engenharia - Engenheira Lorena

Moldar Engenharia

Equipe com mais de 4 anos de experiência e 70 projetos concluídos, a Moldar Engenharia traz o conhecimento técnico e a segurança de um projeto profissional. Representada pela Engenheira Lorena Graciane, com experiência em projetos modulares e estruturais (conhecimento indispensável para construções com tijolos ecológicos). A empresa une teoria e prática, calculando cada detalhe para que tudo se encaixe.

Por que escolher tijolos ecológicos?

Uma solução sustentável, econômica e resistente para sua casa

Acessibilidade

Não exigem experiência prévia. Com treino e foco no projeto, qualquer pessoa pode aprender a construir, inclusive os próprios donos da casa!

Economia

Até 40% de economia em relação a construções convencionais, com menor uso de argamassa e redução de desperdício.

Sustentabilidade

Reduzem o impacto ambiental, já que são fabricados sem queima, com materiais naturais e baixo consumo de energia e água.

Conforto térmico

Além de um bom isolamento acústico, proporcionam uma temperatura interna mais agradável, economizando energia em sistemas de refrigeração.

Resistência

Por serem estruturais, permitem a construção de paredes autoportantes, com vigas e colunas embutidas, garantindo uma estrutura robusta.

Versatilidade

O sistema de encaixe facilita a construção e permite embutir instalações elétricas e hidráulicas, economizando tempo de obra.

O Pacote Completo Casa PI

Tudo o que você precisa para construir sua casa com tijolos ecológicos

Projetos Técnicos Completos

  • Projeto de Modulação Estrutural - Modulação de todos os cômodos com o posicionamento exato dos tijolos, pontos de graute, aberturas de portas, janelas, vãos, distâncias,amarração entre as paredes externas, internas e a independência entre elas.
  • Projeto de Fundação - Base segura para sua construção, do tipo radier, desenvolvido especificamente para tijolos ecológicos
  • Planta Baixa - Identificação dos ambientes, espessura de paredes, nível de piso e indicação de portas e janelas.
  • Projeto de Cortes e Fachadas - Alturas dos cômodos, alturas de portas e janelas, detalhes de construção.
  • Projeto Estrutural Laje - Dimensionamento correto para a laje em cima dos banheiros com capacidade de suportar duas caixas d'água de 1000L.
  • Projeto da Cobertura - Planta para execução da cobertura com duas quedas d'água e telhas termo acústicas.
  • Projeto Elétrico - Indicação dos circuitos elétricos com pontos de saída, tomadas, interruptores e luminárias.
  • Projeto Hidrossanitário - Instalações hidráulicas e sanitárias completas, otimizadas para o sistema construtivo.
  • ART (Anotação de Responsabilidade Técnica) - Documento que garante a legalidade do projeto, para todo o território brasileiro, sem custos adicionais.

Recursos Práticos

Economize tempo e dinheiro com:

  • Lista de Materiais - Quantitativo completo para orçamento preciso, economizando tempo e dinheiro
  • Visualizador 3D - Explore cada detalhe da casa antes de construir, facilitando a tomada de decisões

Características da Casa PI

  • Área da casa: 108m²
  • Área total com varanda e garagem: 220m²
  • Tempo de execução: 5 meses
  • Características gerais: Obra térrea, inteiramente construída com tijolos ecológicos, ventilação cruzada, piso de concreto polido, banheiros com laje e telhado com telhas sanduíche.
  • Ambientes: Varanda, Sala de Jantar/Estar, Cozinha integrada, Lavabo, Banheiro Social, Quarto de Hóspedes, Suíte Principal com banheiro e closet, Lavanderia e Garagem.
Planta baixa Casa PI
Casa Pi Logo

O que está incluso:

  • Projeto de Modulação Estrutural
    R$ 1.435,00
  • Projeto de Fundação
    R$ 1.176,00
  • Planta Baixa
    R$ 847,00
  • Projeto de Cortes e Fachadas
    R$ 791,00
  • Projeto Estrutural da Laje
    R$ 524,00
  • Projeto da Cobertura
    R$ 952,00
  • Projeto Elétrico
    R$ 943,00
  • Projeto Hidrossanitário
    R$ 834,00
  • ART (Responsabilidade Técnica)
    R$ 250,00
  • Lista de Materiais
    R$ 45,00
  • Visualizador 3D
    R$ 150,00
BÔNUS: Manual Completo dos Tijolos Ecológicos

De R$ 7.927,00 por apenas

R$ 2.497,00

ou 12x de R$ 258,25 no cartão

Promoção por tempo limitado!

QUERO ADQUIRIR AGORA

Formas de pagamento:

BÔNUS EXCLUSIVO

Manual Completo dos Tijolos Ecológicos

Um guia completo para que você EVITE TODOS OS ERROS de quem nunca construiu com tijolos ecológicos.

Com linguagem fácil e passo a passo que inclui:

  • Como produzir seus próprios tijolos ecológicos, desde a seleção do solo, até o controle de qualidade!
  • Incluindo todas as etapas de testes, correções, máquinas e materiais necessários.
  • Passo a passo do assentamento, que começa com o preparo do terreno, inclui modulação, alivia o perrengue do rejuntamento e finaliza na impermeabilização!
  • Técnicas para economizar, otimizar tempo, diminuir mão de obra e evitar desperdício
  • Informações cruciais para embutir instalações elétricas e hidráulicas
  • Erros comuns e como evitá-los
  • Ilustrações, imagens reais, vídeos e referência
  • E muito mais!

Você recebe GRATUITAMENTE ao adquirir o pacote Casa PI!

Manual dos Tijolos Ecológicos

A Casa PI é o nosso sonho de bem viver... Sua construção com lindos tijolinhos ecológicos dá um charme rústico especial. É segura, confortável, bem arejada com muitas janelas para receber a luz do dia e da noite!!

Islene Rosa

Islene Rosa

Construir uma casa dá muito trabalho. Optamos pelos tijolos ecológicos por ser um processo que facilita ou até dispensa algumas etapas da obra e também acreditamos que teremos menos problemas de manutenção no futuro.

Pedro Martins

Pedro Humberto

A melhor parte foi depois da primeira fiada… A maior dificuldade foi na modulação. Depois da primeira fiada foi tudo moleza… faria essa daqui e mais umas 100 se tivesse!

Eduardo

Edson Eduardo

Informações Adicionais

  • Formato de entrega: O projeto será enviado de forma digital, em formato PDF.
  • A fundação deste projeto é do tipo radier, usado em solos arenosos. É necessário um profissional legalmente habilitado para definir se essa fundação é adequada para o tipo de solo local.
  • A ART (Anotação de Responsabilidade Técnica) de projeto está inclusa. Não inclui ART de execução, assim como projeto de interiores ou paisagismo.
  • Não nos responsabilizamos por alterações e/ou mudanças no projeto. Qualquer alteração acarretará na perda da garantia.
  • Oferecemos consultoria para orientações.
  • É possível personalizar o projeto. Caso haja interesse, entre em contato.
  • Prazo de entrega: 10 dias úteis, a contar da confirmação do pagamento.
  • Leia atentamente as instruções enviadas junto com o projeto.

Perguntas Frequentes

Dúvidas comuns sobre o projeto Casa PI

Por que preciso de um projeto de engenharia para construir com tijolos ecológicos?

Os tijolos ecológicos possuem características estruturais específicas que precisam ser consideradas no projeto. Construir sem um projeto adequado pode comprometer a segurança e durabilidade da edificação. O projeto desenvolvido pela engenheira Lorena leva em consideração todas as particularidades dos tijolos ecológicos, garantindo uma construção segura e dentro das normas técnicas.

Posso adaptar o projeto para um terreno diferente?

Sim, o projeto pode ser adaptado para diferentes terrenos. No entanto, é preciso consultar um profissional local para fazer os ajustes necessários, especialmente em relação à fundação, que pode variar de acordo com as características do solo.

Preciso ter experiência em construção para utilizar este projeto?

Não é necessário ter experiência prévia, mas recomendamos contar com profissionais qualificados para a execução. O manual incluso fornece todas as orientações necessárias para a produção dos tijolos e construção, mas é importante ter acompanhamento técnico durante a obra.

Quanto tempo leva para construir a Casa PI?

O tempo de construção varia de acordo com a equipe e a experiência, mas em média, a Casa PI pode ser construída em 4 a 6 meses. A produção dos tijolos ecológicos pode ser feita paralelamente ao início da obra, otimizando o tempo total de construção.

O que é a ART incluída no pacote?

A ART (Anotação de Responsabilidade Técnica) é um documento emitido pelo CREA que registra a responsabilidade técnica do profissional pelo projeto. É um documento obrigatório para regularização da obra junto aos órgãos competentes e também serve como garantia de que o projeto foi desenvolvido por um profissional habilitado.

Como recebo os arquivos após a compra?

Após a confirmação do pagamento, você receberá um e-mail com os links para download de todos os arquivos do projeto, incluindo o manual bônus. Os arquivos técnicos serão enviados em formato PDF, e o visualizador 3D será disponibilizado através de um link para acesso online.

Construa sua casa sustentável hoje mesmo!

Adquira o pacote completo Casa PI e comece a planejar a construção da sua casa com tijolos ecológicos.

QUERO ADQUIRIR AGORA